An Teallach, Moonzie Mill

The Site

Forge Design Studio’s very first development project of their own!

After many years of searching for a suitable opportunity, we purchased a building plot in Fife in 2022. Set deep in the countryside of rural Fife yet only 10 minutes from the historic and popular town of St Andrews the site was vacant having been the location of a former joinery works.

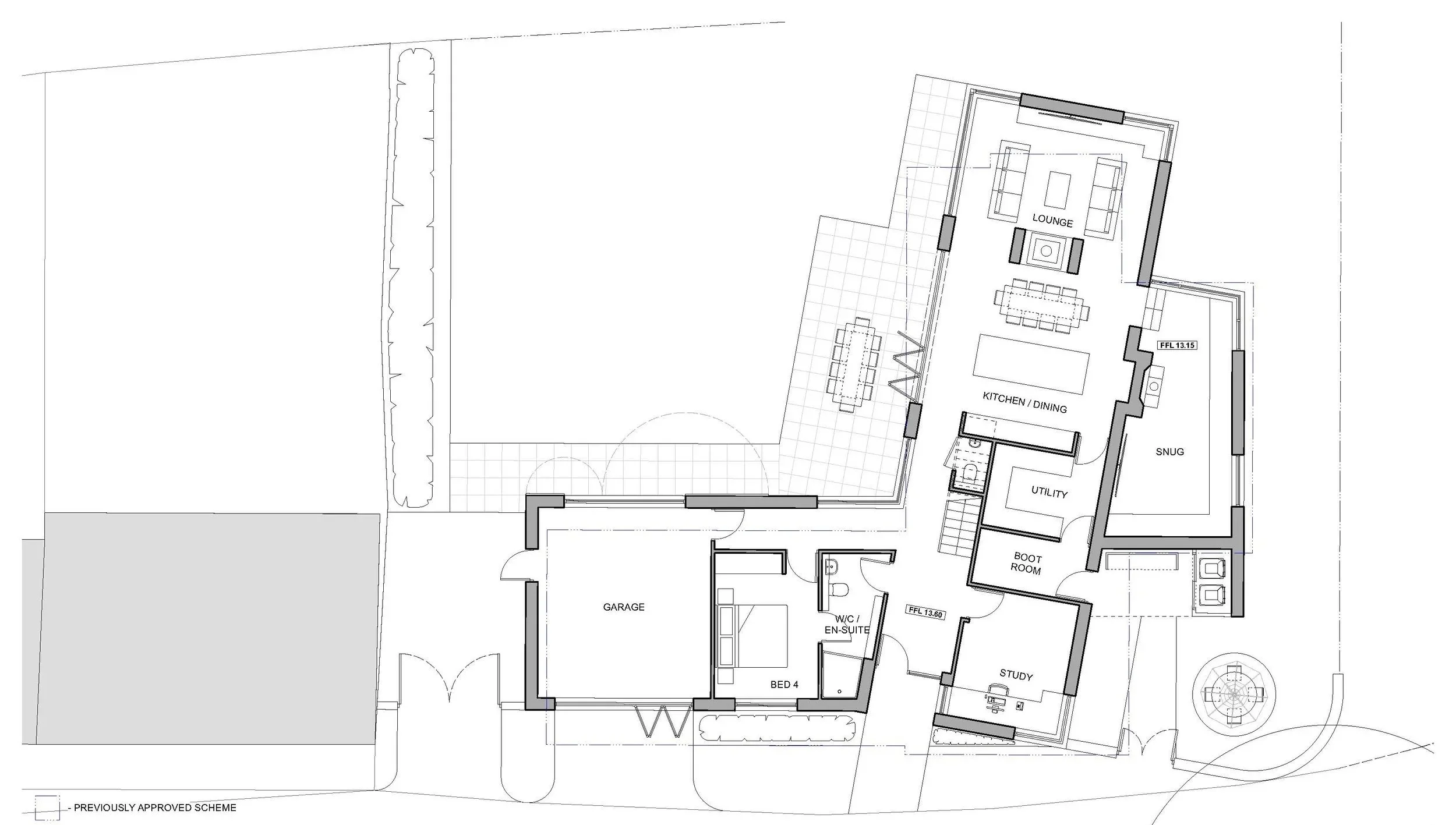
The site had an existing planning consent which we re-worked and re-submitted in May 2022, tailoring our response more closely to the orientation and context of the site. Subtle shifts and changes to the geometry and arrangement of the plan have resulted in a dynamic floor plan which optimises the all-round 360deg views from the site.

The final internal plan is working well and we’re really pleased with the light and airy feel of the interiors. The orientation of the courtyard garden to the north-west is also ideal and we’ve already enjoyed a number of spectacular sunsets.

Following a recent visit by the Building Inspector from Fife Council we have now received our Completion Certificate. We are excitedly preparing to launch the property as a short term holiday let. Some great feedback has been received and we are confident that it will be a successful and popular venture.

Drawings

Status

Planning Permission Granted: February 2021

Completed on Site: May 2022

Main Contractor:

Swilken Joiners Ltd

Structural Engineer:

L N Henderson

Previous
Previous

Paddock House

Next
Next

North Brook End Stud